
Chronik der Insel | Betriebe und Einrichtungen | Insel und Küste | Insel und Stadt Historisch | Küstenschutz | Presse | Vereine
Bodenstab (Bau) | Fliegerhorst | Freiwillige Feuerwehr | Giftbude | Haus Ihnken, Damenpfad | Hotel Germania | Inselkirche | Kinderkurheim Arnsberg | Kurverwaltung | Norderneyer Badezeitung | Norderneyer Schulen | OLB | Postamt | Reederei Norden Frisia | Seehospiz | Stadtwerke | Tischlerei Stürenburg | Wilhelm-Augusta-Heim
Betriebe und Einrichtungen | Freiwillige Feuerwehr | Chroniken
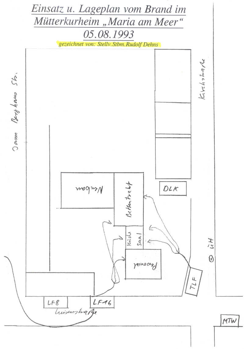
von Obm a.d. Eberhardt | Löschgruppen: 1884-1945 | 1946-1980 | 1980-1998 | 1999-20xx | Jugendfeuerwehr 1992 - 20xx | Oldiegruppe 1992 - 20xx | Spielmannszug | MusikzugGroßbrand am Mütterkurheim "Maria am Meer" - 05.08.1993
